Podłączenie dodatkowych lamp na ramie

Napisane:
25 maja 2010, 21:49
przez Bosman
Witajcie.
Mam 2 dobre lampy Boscha do podłączenia na rurach nad zderzakiem. Będę wdzięczny za kilka porad jak je podłączyć w Montku 3,1 93. Może są firmowo wyprowadzone kable i zapasowy przeaźnik?
Z góry grzecznie dziękuję i
Pozdrawiam

Re: Podłączenie dodatkowych lamp na ramie

Napisane:
26 maja 2010, 00:09
przez gumirek
Chodzi o dodatkowe lampy drogowe, tzw. halogeny dalekosiężne? Również przymierzam się do podłączenia takich lamp, które obecnie robią za ozdobę. Nie liczyłbym na fabryczne wyprowadzenia, bo w żadnej wersji tych aut nie było takiego wyposażenia. Są co prawda wolne miejsca na przekaźniki w skrzynce, ale do innych celów - zależnie od wersji (diesel, benzyna, manual, automat, tempomat, klima).
Reflektory muszą wyłączać się automatycznie przy przełączeniu na mijania. O ile dobrze pamiętam, przełącznik mijania/drogowe działa na minusie. W takim razie cewkę nowego przekaźnika podłączasz z jednej strony do wyprowadzenia drogowych z przełącznika, a z drugiej podajesz plus po stacyjce przez nowy włącznik. Na styki trzeba dać dobre zasilanie, gdzieś po głównym bezpieczniku (nie po stacyjce, żeby nie obciążać istniejącej instalacji), oczywiście przez dodatkowy bezpiecznik. Tego zasilania najlepiej szukać w okolicy skrzynki bezpieczników znajdującej się w komorze silnika (tam właśnie znajdują się bezpieczniki główne).
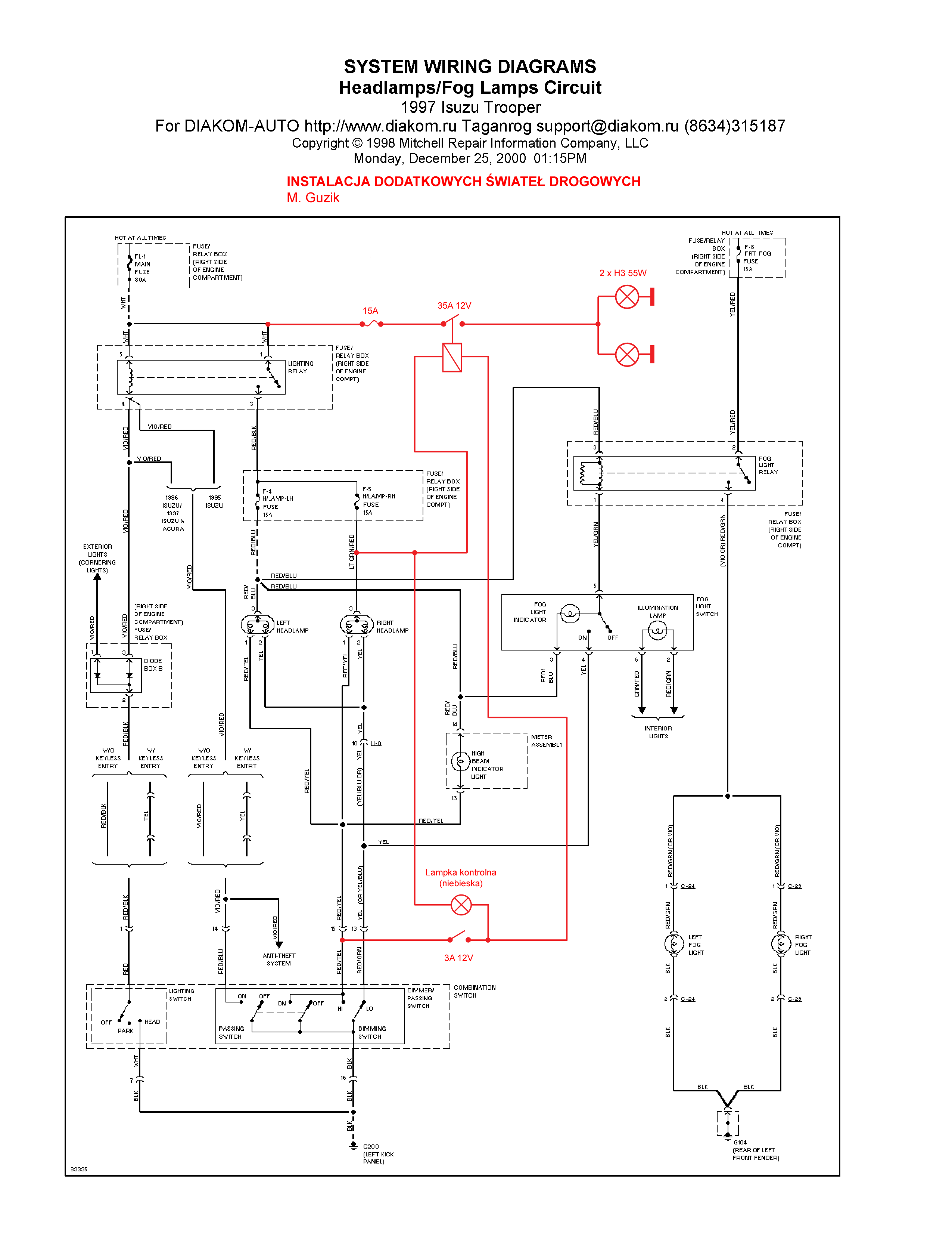
Przydadzą się schematy elektryczne. Ja korzystam z trooper_rodeo_1997.zip (do pobrania ze strony głównej). Mogą występować tylko drobne różnice w oznaczeniu kolorów kabli.
Re: Podłączenie dodatkowych lamp na ramie

Napisane:
01 cze 2010, 13:55
przez rudobrody
Z tego co pamiętam, to w Zuce miałem pociągnięte przewody (+) bezpośrednio z akumulatora, przez dodatkowy bezpiecznik na przełącznik w kabinie, na przekaźnik i reflektory. Masa brana była bezpośrednio z mocowania zderzaka, a prąd na cewkę bezpośrednio z przewodów zasilających reflektory samochodu. No ale Samurai to prymitywna maszyna była i wiele potrafiła znieść

Re: Podłączenie dodatkowych lamp na ramie

Napisane:
07 cze 2010, 18:55
przez gumirek
rudobrody napisał(a):(+) bezpośrednio z akumulatora, przez dodatkowy bezpiecznik na przełącznik w kabinie, na przekaźnik i reflektory
Włącznik bezpośrednio w obwodzie świateł musi mieć duży amperaż. Poza tym wydłuża się obwód o dużym prądzie i musimy z grubymi kablami wędrować do kabiny. Korzystniej i bezpieczniej jest, aby włącznik sterował cewką przekaźnika.
Poniżej proponowane przeze mnie rozwiązanie, które opracowałem zgodnie z założeniami oryginalnej instalacji:
_

- Halogeny.png (170.41 KiB) Przeglądane 5460 razy
Re: Podłączenie dodatkowych lamp na ramie

Napisane:
08 cze 2010, 14:04
przez rudobrody
Z tego co pamiętam to przełącznik (bardzo łatwo dostępny ) typowy rocker do konsoli samochodowych z podświetlaniem diodą, cena około 9 zeta ma wytrzymałość 16A. Do ego przewód jednożyłowy, linka 0,75mm^2 i całość robiła na dwóch Wesemach po 100W. Nic się nie grzało, nie paliło i było łatwo dostępne pod maską do założenia i serwisu. pozostaje kwestia estetyki

.