Jasne. Na przynajmniej dwa sposoby.
Jesli masz komplet razem z modulem to wystarczy zapodac mu +12V i spinaczem mostkowac piny w trzypinowej wtyczce od przelacznika. Jesli nie masz kompletnej ukladanki, to tez mozesz to przetestowac na "nizszym" poziomie, tam jest zwykly silniczek elektryczny, odpinasz wtyczke od niego i zapodajesz 12V, zmieniajac polaryzacje zmieniasz kierunek obrotów, a wiec otwieranie / zamykanie. W drugim scenariuszu musisz uwazac zeby nie przeciazyc silniczka i/lub czegos nie ulamac, bo pomijasz krancowki i mozesz krecic dalej nawet jak jest max otwarty lub max zamkniety.
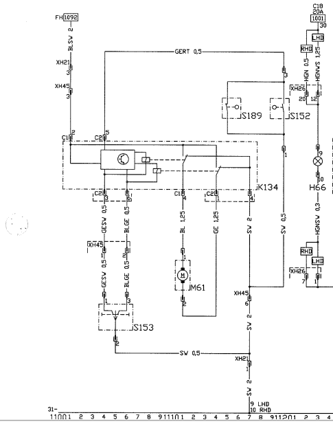
Tu schemat sterowania szyberdachem:

- Trooper Sunroof.png (46.79 KiB) Przeglądane 9656 razy
Ucieta sciezka z prawej strony Cie nie interesuje, to wyzwolenie modułu anti-theft. Cale sterowanie miesci sie na zalaczonym screenie.
Wscibska ciekawosc: Wymieniasz uszkodzony szyber, czy masz fantazje dolozyc szyber do auta w ktorym go fabrycznie nie bylo?